Hochwertige Fläche mit WC's und TG in modernem Komplex

DR Immobilien & Partners GmbH
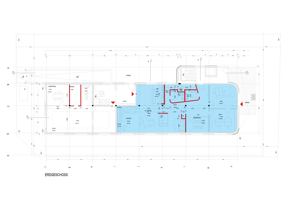
Gesamtes Erdgeschoss
Objektart
Büro/Praxen
Objekttyp
Bürofläche
Vermarktungsart
Miete
PLZ
86633
Ort
Neuburg an der Donau
ImmoNr
DRI-136425
Kaltmiete
3.980,00 €
Baujahr
2022
Energieausweis gültig bis
19.07.2033
Kaution
3 MM

BESCHREIBUNG

Die angebotene Fläche befindet sich im Erdgeschoss eines modernen Komplexes aus dem Baujahr 2022. Im Objekt befinden sich ein Notariat, eine Steuerkanzlei sowie ein Immobilienbüro.

Die Einheit verfügt über eine Gesamtfläche von ca. 265,40 m² und besticht durch ihre hochwertige Ausstattung. Der Haupteingang an der Nordseite des Gebäudes führt zunächst zum Empfangsbereich, neben dem sich ein Büroraum befindet. Von hier aus gelangt man in einen weiteren Raum, welcher sich als Besprechungsraum oder weiteres Büro anbietet. Weiter stehen zwei Gäste-WCs zur Verfügung. Highlight der Einheit ist der großzügige und offene hintere Bereich: Eine Kombination aus Lounge, Küche bzw. Bar sowie einem offenen Raum mit über 91 m², der vielfältige Nutzungsmöglichkeiten bietet. Eine ideale Umgebung für modernes Arbeiten.

Der Zugang erfolgt bequem über eine moderne Chip Schliessanlage. Um das Gebäude befindet sich eine ausreichende Anzahl an Kurzzeitparkplätzen für Kunden. Für Mitarbeiter besteht die Option Tiefgaragen Stellplätze zu nutzen.

Die Fläche bietet sich ideal für repräsentative Geschäftsadressen. Vor allem aufgrund der vielen bodentiefen Fenster sind die Räumlichkeiten sehr hell und einladend. Durch die Raffstores lässt sich der Lichteinfall und die Privatsphäre bequem anpassen.

Flächenaufstellung
Empfang: 33,60 m²
Büro: 33,10 m²
Besprechungsraum: 18,20 m²
Offener Bereich: 91,10 m²
Bar: 14,20 m²
Lager: 5,40 m²
Gäste-WCs: 14,80 m²
Flure: 55,00 m²
= 265,40 m² Gesamtfläche

x 15 €/m²
= 3.980 € Kaltmiete
+ 250 € Nebenkosten
zzgl. 19 % Umsatzsteuer

LAGE

Die Gewerbeimmobilie befindet sich prominent an der Augsburger Straße in Neuburg zwischen Stadtkern und Gewerbegebiet. Das Gebäude besticht durch moderne und repräsentative Architektur. Die Adresse lässt sich besonders gut mit dem Auto anfahren. Auf dem Grundstück befinden sich ausreichend Kurzzeitparkplätze für Kunden. Mitarbeiterstellplätze sind in der Tiefgarage vorhanden. Auf Wunsch mit E-Ladestation. In der unmittelbaren Umgebung befinden sich viele Geschäfte des täglichen Bedarfs sowie eine Bäckerei und ein Supermarkt direkt gegenüber.

Karte

AUSSTATTUNG

+ Fußbodenheizung
+ Lüftungsanlage
+ große Fenster mit Raffstores
+ moderne Ausstattung
+ verschiedene Möbel können nach Absprache abgelöst werden
+ Feinsteinzeug Fliesen
+ Schließanlage mit Chip
+ Tiefgaragenstellplatz (auch mit E-Ladestation)
+ Hausmeisterservice
+ Netzwerkstecker und ausreichend Steckdosen vorhanden

SONSTIGES

Die Vermittlung dieser Immobilie erfolgt für den Mieter PROVISIONSFREI und exklusiv durch DR Immobilien & Partners GmbH.

Wir weisen darauf hin, dass die von uns weitergegebenen Objektinformationen, Unterlagen, Pläne etc. vom Vermieter stammen. Eine Haftung für die Richtigkeit oder Vollständigkeit der Angaben übernehmen wir daher nicht. Es obliegt daher unseren Kunden, die darin enthaltenen Objektinformationen und Angaben auf ihre Richtigkeit hin zu überprüfen. Alle Immobilienangebote sind freibleibend und vorbehaltlich Irrtümer, Zwischenvermietung oder sonstiger Zwischenverwertung.

Ansprechpartner

Contact person image

Frau Anke Thomas

DR Immobilien & Partners GmbH

Am Neufeld 1
86633 Neuburg an der Donau

Telefon1

08431 3914490

Email

info@richarz-immobilien.de

Dokumente

PDF-Exposé

Weitere ähnliche Immobilien

DR Immobilien & Partners GmbH
Erstbezug: Vielseitige Ladenfläche mit Schaufensterfront in bester Altstadtlage!
Datensatznr
3.221
ImmoNr
DRI-159925
Ort
Neuburg an der Donau
PLZ
86633