Effizient. Modern. Zentral. 15 hochwertige Eigentumswohnungen mit Aufzug und Tiefgarage

DR Immobililien & Partners GmbH
Umgebung
Umgebung
Grundstück
Visualisierung
Visualisierung
Visualisierung
Grundstück
Grundstück
Grundstück
Grundstück
Grundstück
Grundstück
Einfahrt
Einfahrt
Umgebung
Umgebung
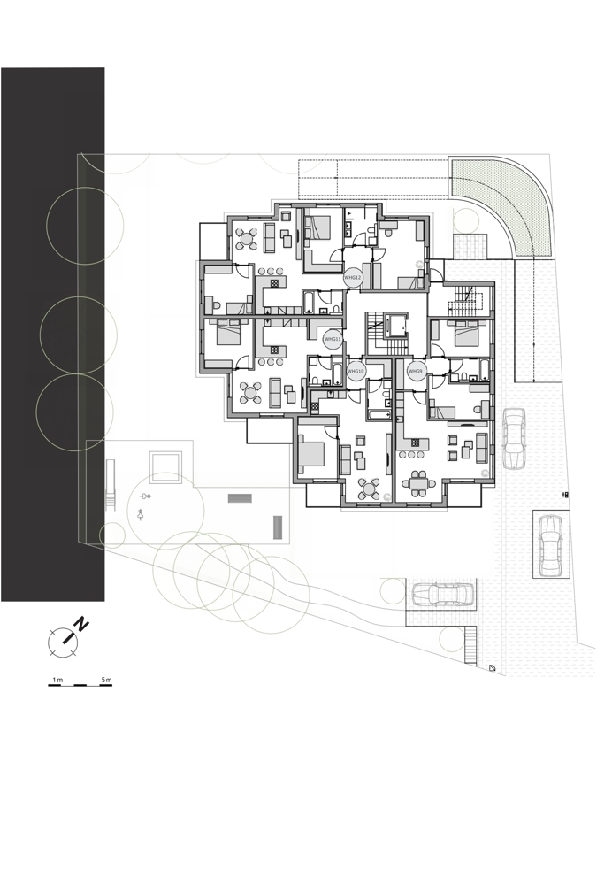
Erdgeschoss
1. Obergeschoss
2. Obergeschoss
3. Obergeschoss
Dachgeschoss
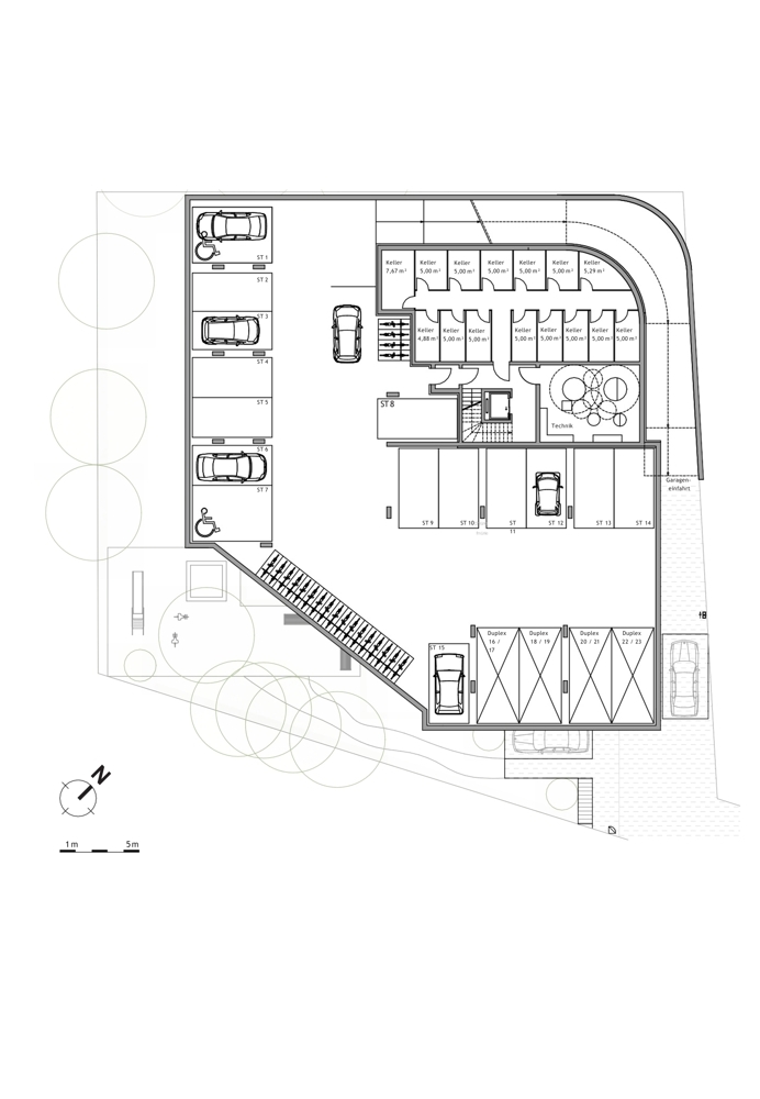
Untergeschoss
Objektart
Wohnung
Objekttyp
Erdgeschoss
Vermarktungsart
Kauf
PLZ
85051
Ort
Ingolstadt
ImmoNr
DRI-162325
Wohnfläche
ca. 66 m²
Anzahl Zimmer
2
Anzahl Badezimmer
1
Kaufpreis
379.730,00 €
Energieausweis gültig bis
29.10.2036
wesentlicher Energieträger
Luft/Wasser Wärmepumpe

BESCHREIBUNG

Auf einem großzügigen Grundstück mit über 1.400 m², ruhig zurückversetzt von der Münchener Straße, entsteht ein modernes Mehrfamilienhaus mit insgesamt 15 hochwertigen Eigentumswohnungen (2 bis 4 Zimmer, alle mit Aufzug) sowie einer Tiefgarage mit Einzel- und Duplexstellplätzen, zwei optionalen Behindertenstellplätzen und einem oberirdischen Besucherparkplatz. Die Wohnungen werden mit dem Baustandard KFW 40 QNG errichtet. Siehe Ausstattung.

Die durchdachten Grundrisse und sorgfältig ausgewählten Materialien schaffen ein Wohnambiente, das zeitlose Architektur, hohen Komfort und nachhaltige Qualität vereint. Bodentiefe Fenster sorgen für lichtdurchflutete Räume, während Terrassen und Balkone – teilweise mit modernen, perforierten Metallbrüstungen – ein offenes Wohngefühl und zusätzlichen Freiraum bieten. Im Inneren überzeugen die Wohnungen durch Echtholzparkett in allen Wohnräumen, Fußbodenheizung in der gesamten Wohnung sowie hochwertige, zeitlose Sanitärobjekte. Feinsteinzeugfliesen in Küchen, Bädern und Fluren unterstreichen die klare, elegante Linienführung. Wohnungen mit zwei Bädern verfügen sowohl über Badewanne als auch Dusche. Die Erdgeschosswohnungen genießen exklusive Gartenanteile als Sondernutzungsfläche, während allen Bewohnern ein gemeinschaftlicher Garten mit Spielplatz zur Verfügung steht – ein idealer Ort zum Entspannen und für Familien.

Jede Wohnung verfügt über ein separates Kellerabteil, Fahrradstellplätze sind in der Tiefgarage vorhanden. Die modernste Heiztechnik mit Luftwärmepumpe sorgt für energieeffizientes und umweltfreundliches Wohnen. Der alte Baumbestand rund um das Grundstück spendet im Sommer natürlichen Schatten und sorgt zugleich für angenehme Ruhe – eine grüne Oase, die urbanes Leben und naturnahes Wohnen harmonisch verbindet.

LAGE

Ingolstadt liegt in der Metropolregion München und bietet eine hohe Lebensqualität. Ob medizinische Versorgung, zahlreiche Bildungseinrichtungen von KITA bis Universität, Kultur- und Freizeitangebote für jedes Alter und jeden Anspruch. Erholungsorte für Körper und Geist in nächster Nähe im Grüngürtel um die Altstadt und in den fast unberührten Donauauen. Sportangebote für alle Lieblingssportarten in über 100 Vereinen und jeder Leistungsklasse bis hin zu den Ligen im Spitzensport für Eishockey, Fußball und sogar American Football. Im Umkreis von einem Kilometer finden Sie zahlreiche Restaurants, Bäcker, einen Supermarkt, eine Apotheke und Drogerie, Banken und Schulen. Restaurants für jeden Geschmack und Urlaubsgefühle bei einem Cocktail am Donaustrand mit Blick auf das neue Schloss runden das Freizeitangebot ab. Den idyllischen Luitpoldpark an der Donau erreichen Sie zu Fuß in weniger als 10 Minuten. Zum Shopping sind Sie in nur 30 Minuten mit dem ICE in München oder Nürnberg oder auch in nur wenigen Minuten im Ingolstadt Village und in der zauberhaften Altstadt mit ihren vielen Fachgeschäften. Hervorragende überregionale Anbindung bieten die A9, B300, B13 und B16.

AUSSTATTUNG

Vorteile vom Baustandard KFW 40 QNG:
+ Förderung: Es gibt zinsgünstige Kredite und eine Tilgungszuschuss.
+ Steuervorteile: Investoren können die Sonderabschreibung nach § 7b EStG nutzen, was zu einer erheblichen Steuerersparnis führen kann.
+ Umweltfreundlichkeit: Der klimafreundliche Standard hilft, CO2-Emissionen zu senken.
+ Niedrige Betriebskosten: Durch die hohe Energieeffizienz fallen die laufenden Energiekosten geringer aus

weitere Ausstattungsmerkmale:
+ bodentiefe 3-fach verglaste Fenster
+ hochwertige und zeitlose Sanitärobjekte
+ Modernste Heiztechnik mit Luftwärmepumpe
+ Fußbodenheizung in der gesamten Wohnung
+ Echtholzparkett in allen Wohnräumen und Feinsteinzeug in Küche, Bädern und Fluren
+ Wohnungen mit zwei Bädern sind mit Badewanne und Dusche ausgestattet
+ Zu jeder Wohnung gehört ein Kellerabteil
+ Terrassen oder Balkone mit moderne perforierte Metallbrüstungen
+ Gartenanteile für die Erdgeschosswohnungen
+ Gemeinschaftsgarten mit Spielplatz
+ Besucherparkplatz und zwei Behindertenstellplätze nach Bedarf
+ Fahrradstellplätze in der Tiefgarage
+ zzgl. Duplex-Stellplatz oder Einzelstellplatz jeweils in Tiefgarage

SONSTIGES

Erdgeschoss:
Wohnung 1 - 3 Zimmer - 104,17 m² - 578.143,50 €
Wohnung 2 - 2 Zimmer - 66,04 m² - 379.730,00 €
Wohnung 3 - 2 Zimmer - 69,60 m² - 407.160,00 €
Wohnung 4 - 4 Zimmer - 112,07 m² - 665.609,50 €


1. Obergeschoss
Wohnung 5 - 3 Zimmer - 104,17 m² - 572.935,50 €
Wohnung 6 - 2 Zimmer - 66,04 m² - 363.220,00 €
Wohnung 7 - 2 Zimmer - 69,60 m² - 407.160,00 €
Wohnung 8 - 4 Zimmer - 116,98 m² - 649.239,00 €

2. Obergeschoss
Wohnung 9 - 3 Zimmer - 93,75 m² - 520.312,50 €
Wohnung 10 - 2 Zimmer - 66,04 m² - 373.126,00 €
Wohnung 11 - 2 Zimmer - 69,60 m² - 407.160,00 €
Wohnung 12 - 4 Zimmer - 116,98 m² - 684.333,00 €

3. Obergeschoss
Wohnung 13 + DG - 4 Zimmer - 115,63 m² - 676.435,50 €
Wohnung 14 - 3 Zimmer - 123,23 m² - 720.895,50 €
Wohnung 15 + DG - 4 Zimmer - 133,47 m² - 780.799.50 €

zzgl. Doppelparker für 32.000 € oder Tiefgaragenstellplatz 20.000 €

Die Vermittlung dieser Immobilie erfolgt OHNE KÄUFERPROVISION und exklusiv durch DR Immobilien & Partners GmbH. Wir weisen darauf hin, dass die von uns weitergegebenen Objektinformationen, Unterlagen, Pläne etc. vom Verkäufer stammen. Eine Haftung für die Richtigkeit oder Vollständigkeit der Angaben übernehmen wir daher nicht. Es obliegt daher unseren Kunden, die darin enthaltenen Objektinformationen und Angaben auf ihre Richtigkeit hin zu überprüfen. Alle Immobilienangebote sind freibleibend und vorbehaltlich Irrtümer, Zwischenverkauf- und Vermietung oder sonstiger Zwischenverwertung.

Ansprechpartner

Contact person image

Frau Alina Kobras

DR Immobilien & Partners GmbH

Milchstraße 9
85049 Ingolstadt

Telefon1

0841 99396600

Email

info@richarz-immobilien.de

Dokumente

PDF-Exposé