Sanierte DG-Wohnung inkl. EBK in ruhigem 3 Parteienhaus

DR Immobilien & Partners GmbH
Außenansicht
Außenansicht
Außenansicht
Immobilienbewertung
Esszimmer
Esszimmer
Esszimmer
Küche
Kühe
Flur
Schlafzimmer
Verkauf & Vermietung
Schlafzimmer
Kinderzimmer/Büro
Kinderzimmer/Büro
Flur
Badezimmer
Badezimmer
Kellerraum
Verkaufsberatung
Außenansicht
Außenansicht
Außenansicht
Außenansicht
Objektart
Wohnung
Objekttyp
Dachgeschoss
Vermarktungsart
Kauf
PLZ
85120
Ort
Hepberg
ImmoNr
DRI-161325
Wohnfläche
ca. 67 m²
Nutzfläche
ca. 11 m²
Anzahl Zimmer
3
Anzahl Badezimmer
1
Kaufpreis
299.000,00 €
Baujahr
1972
Energieausweis gültig bis
01.12.2033

BESCHREIBUNG

Diese 3-Zimmer-Wohnung befindet sich im Dachgeschoss eines gepflegten drei Parteienhauses in einem ruhigen Wohngebiet von Hepberg. Die Wohnung wurde 2021 komplett renoviert (siehe Ausstattung) und auf den neuesten Stand gebracht. Die Gasheizung (2021) mit Solarunterstützung ist nicht nur umweltfreundlich, sondern spart langfristig Kosten.

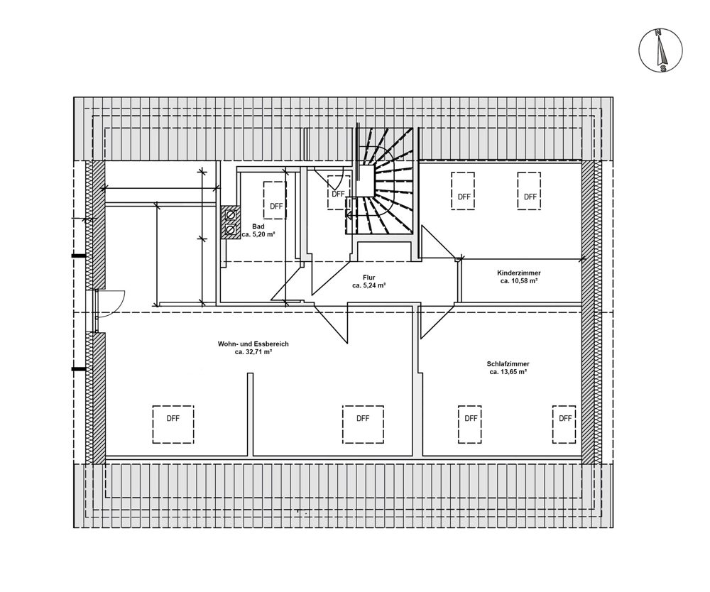
Die Wohnung erstreckt sich über das gesamte Dachgeschoss (2. Stock), sodass maximale Ruhe geschaffen wird. Die Schuhe können bequem vor der Wohnungstür aufbewahrt werden und Jacken finden Platz in der Garderobe im Flur. Der zeitgemäße, offen gestaltete Grundriss schafft ein helles, freundliches Ambiente und umfasst ein Schlafzimmer, ein Kinderzimmer oder Büro, einen großzügigen Wohn-/Ess-/Kochbereich sowie ein Tageslichtbad. Auf der Südseite sind elektrische Außenrollläden installiert, die zusätzlichen Komfort bieten.

Die moderne Einbauküche fügt sich harmonisch in den offenen Wohnbereich ein. Ein stilvoller Tresen trennt den Küchen- vom Essbereich und bietet zugleich zusätzliche Arbeitsfläche. Eine halbe Wand sorgt für eine klare räumliche Gliederung, ohne die offene Wohnatmosphäre zu beeinträchtigen – ideal für eine flexible und individuelle Einrichtung. Ein besonderes Highlight ist die bereits vorliegende Baugenehmigung für einen Balkon, die weiteres Potenzial für zusätzlichen Wohnkomfort bietet. Das Tageslichtbad mit zeitlosen grauen Fliesen, dem aufgesetzten Waschbecken und der Dusche ist nicht nur funktionell, sondern auch ästhetisch ansprechend. Zudem befindet sich hier der Waschmaschinenanschluss, was den Alltag ungemein erleichtert.

Abgerundet wird das Angebot durch einen großzügigen Kellerraum sowie einen Außenstellplatz (zzgl. 8.000 €). Die umfangreichen Sanierungen der letzten Jahre, einschließlich der Erneuerung von Fenstern, Elektrik, Dach, Heizung und vielem mehr, machen diese Wohnung zu einer Investition in die Zukunft.

Auf Anfrage erhalten Sie das Exposé und die 360°-Tour von uns. Ebenso sind alle weiteren Unterlagen vollständig und perfekt vorbereitet und können jederzeit zur Verfügung gestellt werden.

LAGE

Die Immobilie befindet sich in einer ruhigen Wohngegend in Hepberg - im Nordosten von Ingolstadt. In 2 Autominuten sind sie auch schon auf der A9 und in 14 Minuten in Ingolstadt. Die Bäckerei Sipl und eine Metzgerei sind nur 650 Meter entfernt. Alle weiteren Geschäfte des täglichen Bedarfs erreicht man in zwei Autominuten im Nachbarort Lenting, ebenso wie die Grund- und Mittelschule. In der direkten Umgebung befindet sich ein Tennisplatz und eine Parkanlage, welche zum auspowern oder entspannen nach der Arbeit einladen.

AUSSTATTUNG

+ inkl. Einbauküche mit Geräten (von 2021)
+ Baugenehmigung für Balkon liegt vor
+ Gasheizung mit Solarunterstützung (von 2021)
+ Außenstellplatz (zzgl. 8.000 €)
+ gefliester Kellerraum mit Fenster mit ca. 11 m²
+ LED Spots
+ 2019 Erneuerung Dach, Fenster, Elektro teilweise
+ 2020 Vollwärmeschutz, Bad
+ 2021 Bodenbeläge, Türen, Haueingangstür, Klingelanlage mit Video
+ elektrische Außenrollläden auf der Südseite

SONSTIGES

Die Vermittlung dieser Immobilie erfolgt OHNE KÄUFERPROVISION und exklusiv durch DR Immobilien & Partners GmbH. Wir weisen darauf hin, dass die von uns weitergegebenen Objektinformationen, Unterlagen, Pläne etc. vom Verkäufer stammen. Eine Haftung für die Richtigkeit oder Vollständigkeit der Angaben übernehmen wir daher nicht. Es obliegt daher unseren Kunden, die darin enthaltenen Objektinformationen und Angaben auf ihre Richtigkeit hin zu überprüfen. Alle Immobilienangebote sind freibleibend und vorbehaltlich Irrtümer, Zwischenverkauf- und Vermietung oder sonstiger Zwischenverwertung.

Ansprechpartner

Contact person image

Frau Alina Kobras

DR Immobilien & Partners GmbH

Milchstraße 9
85049 Ingolstadt

Telefon1

0841 99396600

Email

info@richarz-immobilien.de

Dokumente

PDF-Exposé