Variable Größen ab 200 m²! Büros im Gewerbepark zur individuellen Gestaltung!

Dennis Richarz Immobilien
Außen 1
Außen 2
Außen 3
Außen 4
Vogelperspektive
Außenanlage
Außenanlage
Ausstattungsstandard
Ausstattungsstandard
Ausstattungsstandard
Ausstattungsstandard
Ausstattungsstandard
Referenz Nachbarbüro
Referenz Nachbarbüro
Referenz Nachbarbüro
Lage
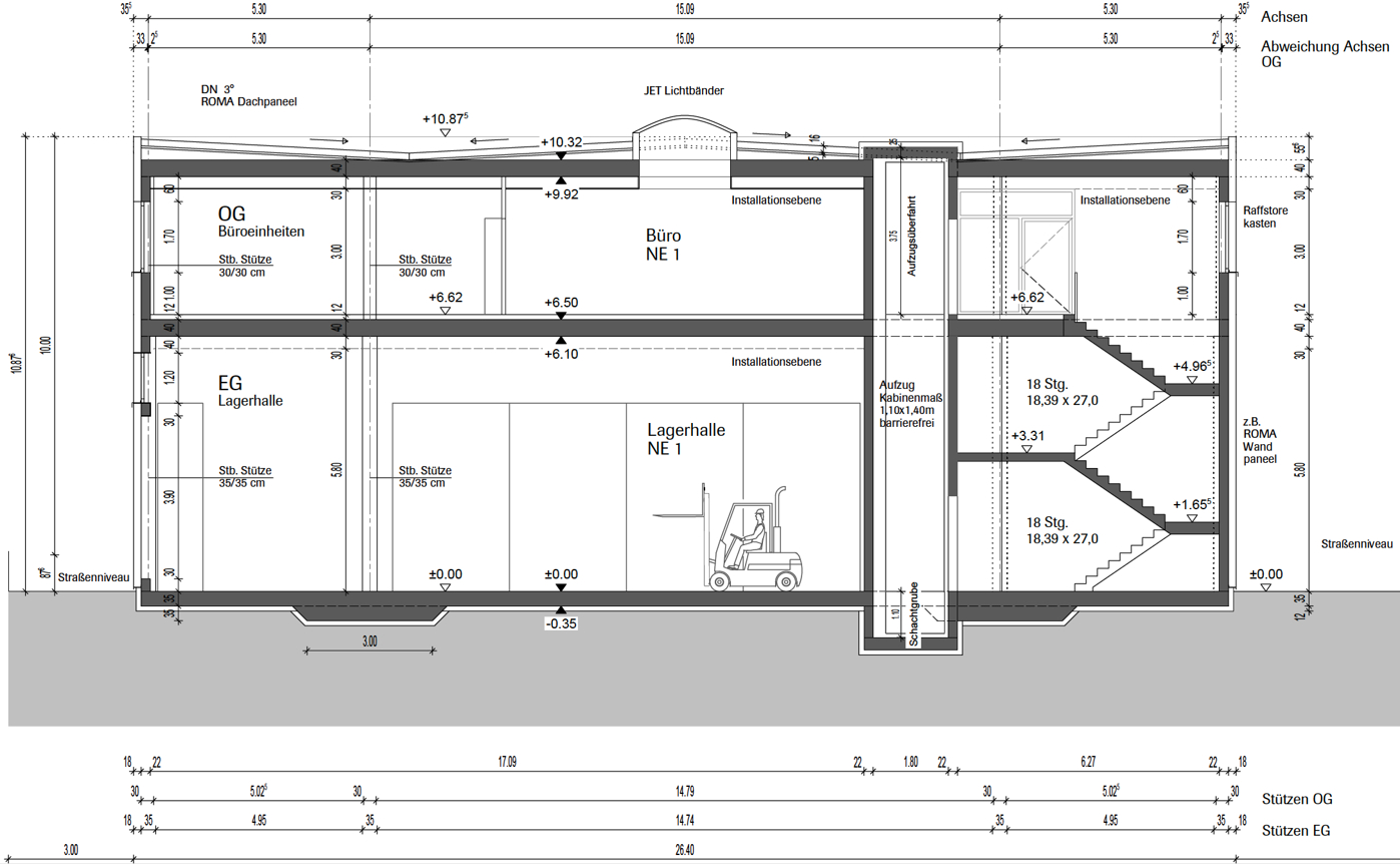
Grundriss OG (Büros)
Südansicht
Objektart
Büro/Praxen
Objekttyp
Bürofläche
Vermarktungsart
Miete
PLZ
85055
Ort
Ingolstadt
ImmoNr
DRI-158525
Kaltmiete
2.380,00 €
Baujahr
2019
Energieausweis gültig bis
0000-00-00
Außen-Provision
1,5 MM (netto)
Kaution
2 MM

BESCHREIBUNG

Die Neubau Halle wurde im Sommer 2019 fertiggestellt. Insgesamt bietet sie 1.400 m² Lagerfläche im EG und ebenso 1.400 m² Bürofläche im OG. Die Lagerfläche ist bereits langfristig vermietet. Von der Bürofläche sind noch ca. 1.050 m² verfügbar - Größen und Ausstattungen individuell gestaltbar.

Über einen Treppenaufgang gelangt man ins Obergeschoss. Auf ebenfalls knapp 1.400 m² sind hier Büros und Besprechungsräume geplant. Um den Mietern eine maximale Flexibilität zu ermöglichen, kann alternativ auch ein veredelter Rohbau mit allen verfügbaren Anschlüssen bereitgestellt werden. Der Innenausbau kann dann nach den individuellen Anforderungen und Wünschen durch die Mieter vorgenommen werden. Der m²-Preis liegt dann deutlich unter dem Marktniveau, wodurch sich über die Laufzeit große Kostenvorteile generieren lassen.

Der Mietpreis für die Lager- und Büroflächen ist abhängig von der gemieteten Fläche, der Laufzeit sowie Anforderungen an das Mietobjekt und beträgt:

Ab 11,90 €/m² kalt (netto) VB beim einzugsfertigem Zustand (Ausbau nach Wunsch: Fenster, Aufteilung etc.)
+ Siehe Fotos vom Nachbarbüro als Referenz.

Die Mindestabnahmefläche der Büroräume ist 200 m².

LAGE

Der Gewerbepark Nord-Ost und der benachbarte InterPark sind zwei Gewerbegebiete östlich von Ingolstadt und im Herzen Bayerns, die sich durch Ihre ausgesprochen gute Mikro- und Makrolage auszeichnen. Diese geografische Mitte Bayerns ist hier für Sie Ausgangspunkt, um in unter 60 Autominuten über die Autobahn A9 oder die Bundestraße B16a die Metropol-Regionen München, Nürnberg, Regensburg und Augsburg anzufahren.

Karte

AUSSTATTUNG

+ noch 1.050 m² Bürofläche verfügbar (Ausbau nach Wunsch, Fenster, Aufsteilung etc.)
+ über 3.000 m² Grundstück, überwiegend gepflastert
+ freundliches Gesamtbild durch ca. 600 m² Grünflächen
+ Halle mit Volldämmung
+ Fußbodenheizung und LED Beleuchtung in der gesamten Lagerhalle
+ Starkstrom bis zu über 70 kV
+ vier barrierefreie Rolltore
+ mehrere WC's (Damen und Herren separat)
+ ausreichend Stellplätze (20 Stück) auf dem eigenen Grundstück vorhanden

SONSTIGES

Die Vermittlung dieser Immobilie erfolgt exklusiv durch DR Immobilien & Partners GmbH. Mit der Anfrage bei und durch Inanspruchnahme der Dienstleistung der Firma DR Immobilien & Partners GmbH, wird ein Maklervertrag geschlossen. Vom Mieter ist eine Vermittlungsprovision in Höhe von 1,785 Monatsmieten (zzgl. MwSt.) vom vertraglich vereinbarten Mietpreis zu zahlen. Bitte beachten Sie zusätzlich unsere AGBs.

Wir weisen darauf hin, dass die von uns weitergegebenen Objektinformationen, Unterlagen, Pläne etc. vom Vermieter stammen. Eine Haftung für die Richtigkeit oder Vollständigkeit der Angaben übernehmen wir daher nicht. Es obliegt daher unseren Kunden, die darin enthaltenen Objektinformationen und Angaben auf ihre Richtigkeit hin zu überprüfen.

Ansprechpartner

Contact person image

Frau Verena Altin

DR Immobilien & Partners GmbH

Milchstraße 9
85049 Ingolstadt

Telefon1

0841 9939 6600

Email

info@richarz-immobilien.de

Dokumente

PDF-Exposé